Ficha Técnica y Memoria del Proyecto
Jefe de Diseño: Ramón Bermúdez.
Equipo de Diseño: Paula Sopó, Jaime Barrera, Luis Angel Rivera, Daniela Almansa, Isabela Parra, Andrés Rengifo, Camila Morales, Sofia Ortiz, Antonia Santos, Federico Chaparro, Valeria Galán, Natalia Acosta, Santiago Izquierdo, Daniela Chaves, Laura Rodriguez, Davi Villegas, Juliana Gutierrez, Carlos Santamaría, Loris Vendrami.
Diseño arquitectónico y paisajístico: Bermúdez Arquitectos
Construcción: Constructora Obreval
Estudio de Suelos: E y R Servicios Geotécnicos
Cálculo Estructural: Aycardi Estructural
Ventilación mecánica y aire acondicionado: A Gamboa ingeniería
Red hidrosanitaria, incendios y gas: Plinco S.A
Diseño eléctrico y cableado estructurado: Semger LTDA
Transporte vertical: Alpa Electric S.A
Seguridad Humana y control: AVG Ingeniería S.A.S
Diseño bioclimático: SES S.A.S
Diseño de iluminación: MTS Consultoría en iluminación y Cia
Diseño de cocinas: La cocina de Silvia Gast
Asesor tránsito y diseño geométrico: Urbik S.A.S
Diseño acústico: ADT acústica
Gestión normativa y licencias: Trayectoria S.A
Asesor BIM: AE Proyectos
Presupuesto y programación: Payc S.A.S
Asesor energías renovables: Abacus
Programa arquitectónico: Uniandes
Topografía: Miguel Sánchez Alferez
La densificación urbana y las crecientes demandas de nuevas instituciones académicas en los centros urbanos están en la base de la proliferación de campus universitarios verticales en la ciudad de Bogotá. Este caso, localizado en el centro geográfico de la ciudad, es especialmente interesante debido a los requerimientos específicos de hibridación de programas tradicionalmente separados pero que al juntarlos se logra un espacio único en el país donde academia, bienestar y empresa pueden encontrarse de manera simbiótica.
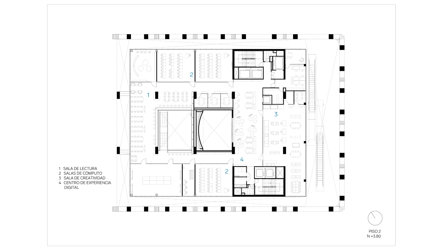
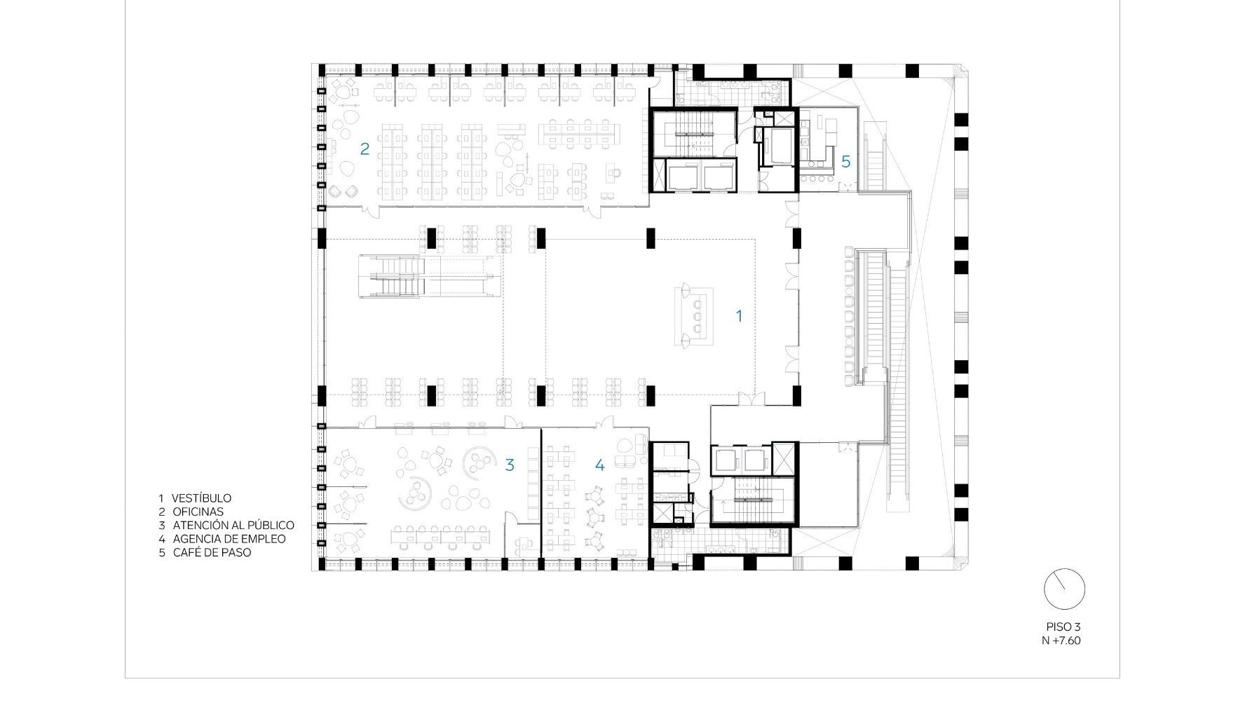
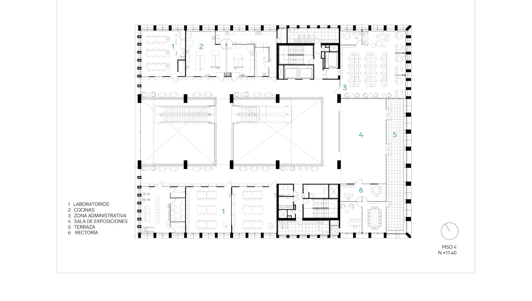
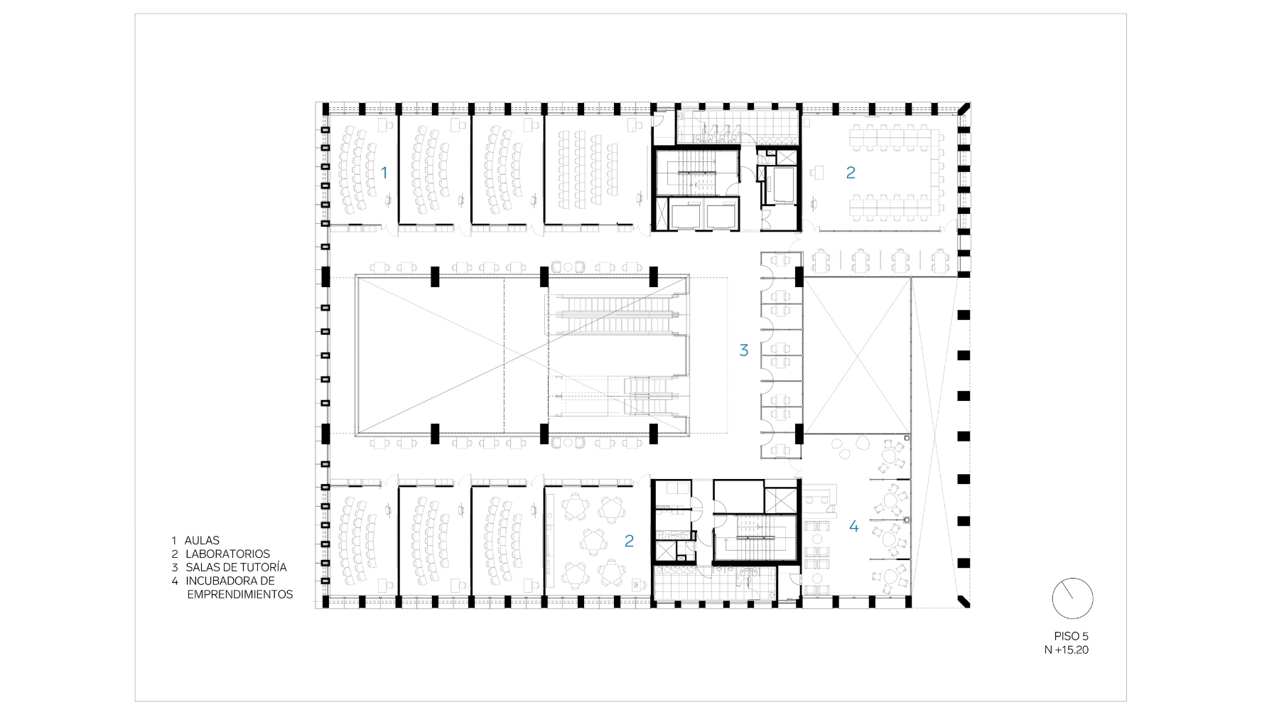
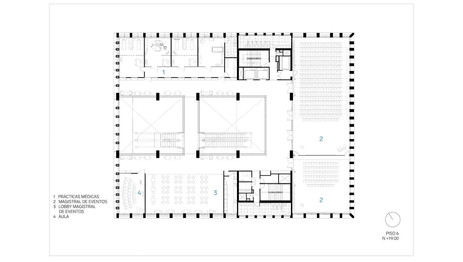
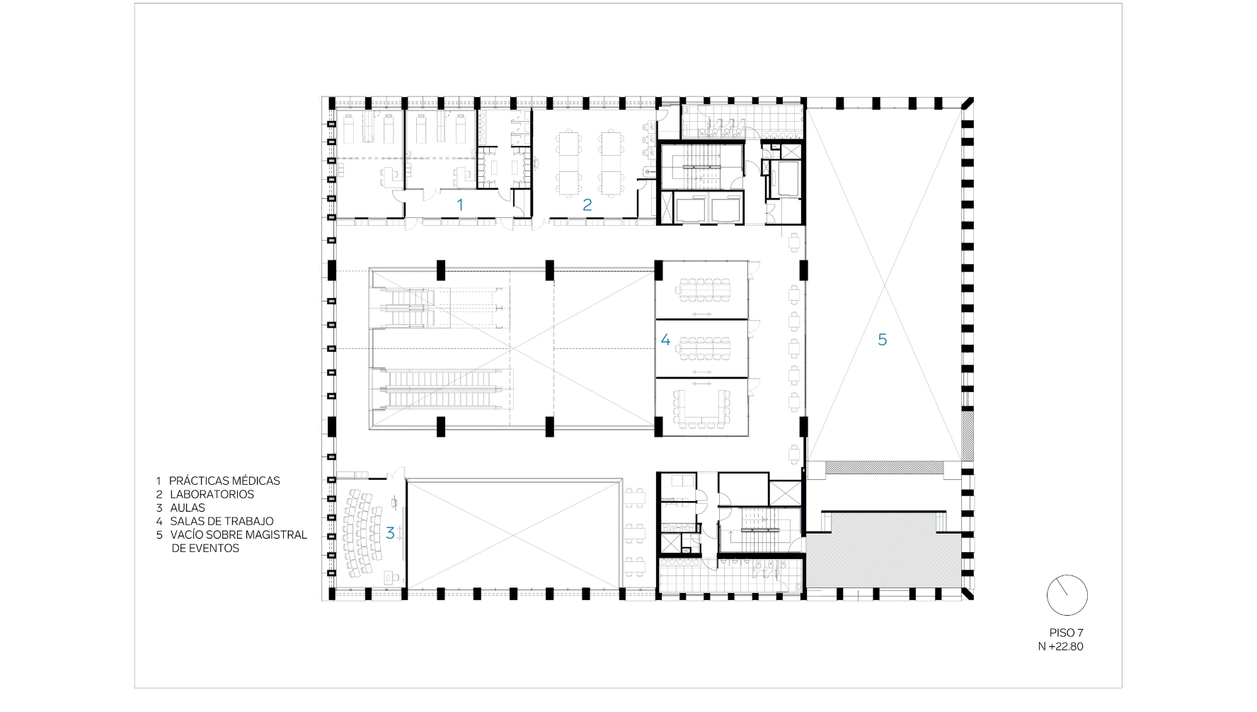
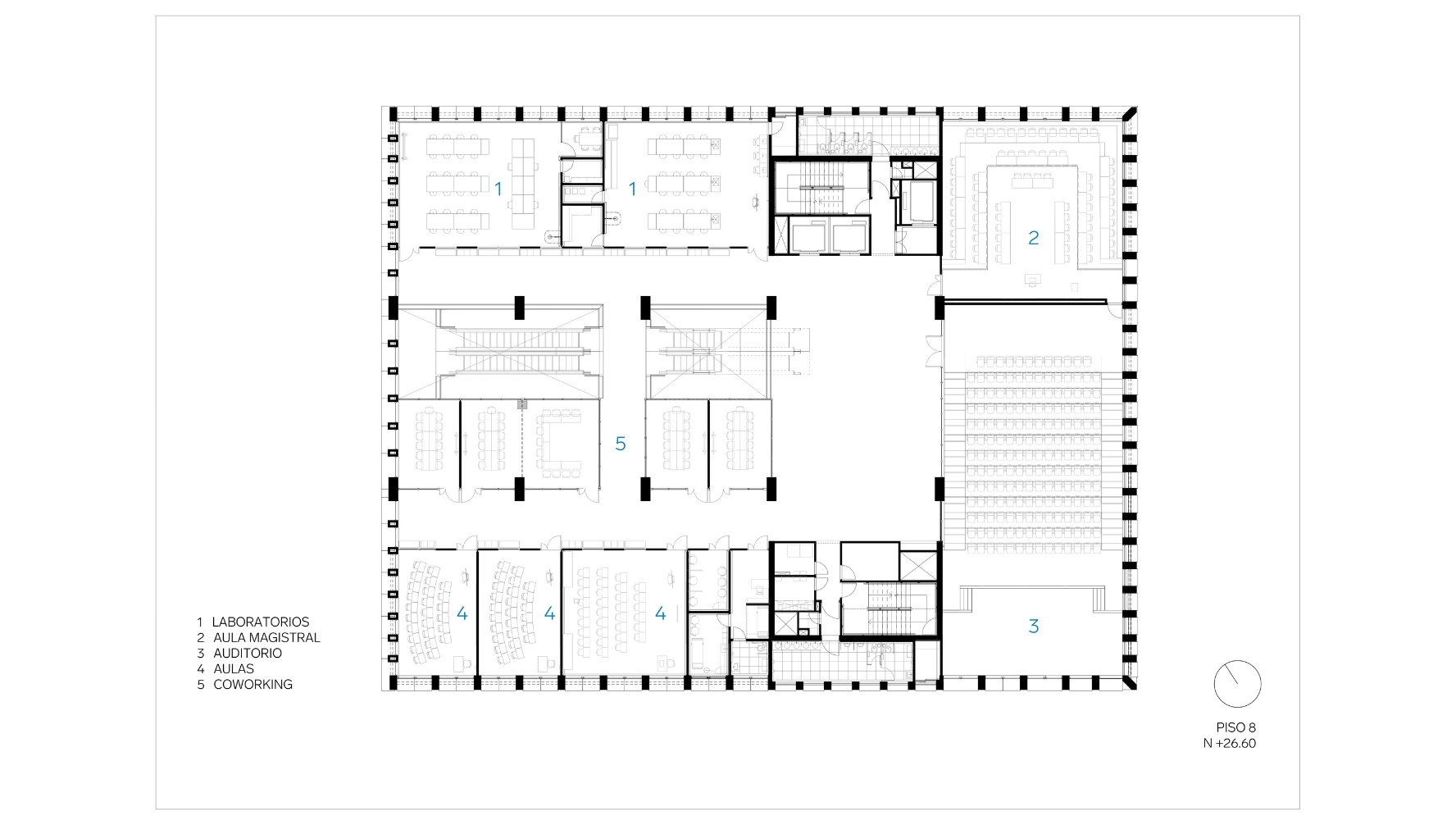
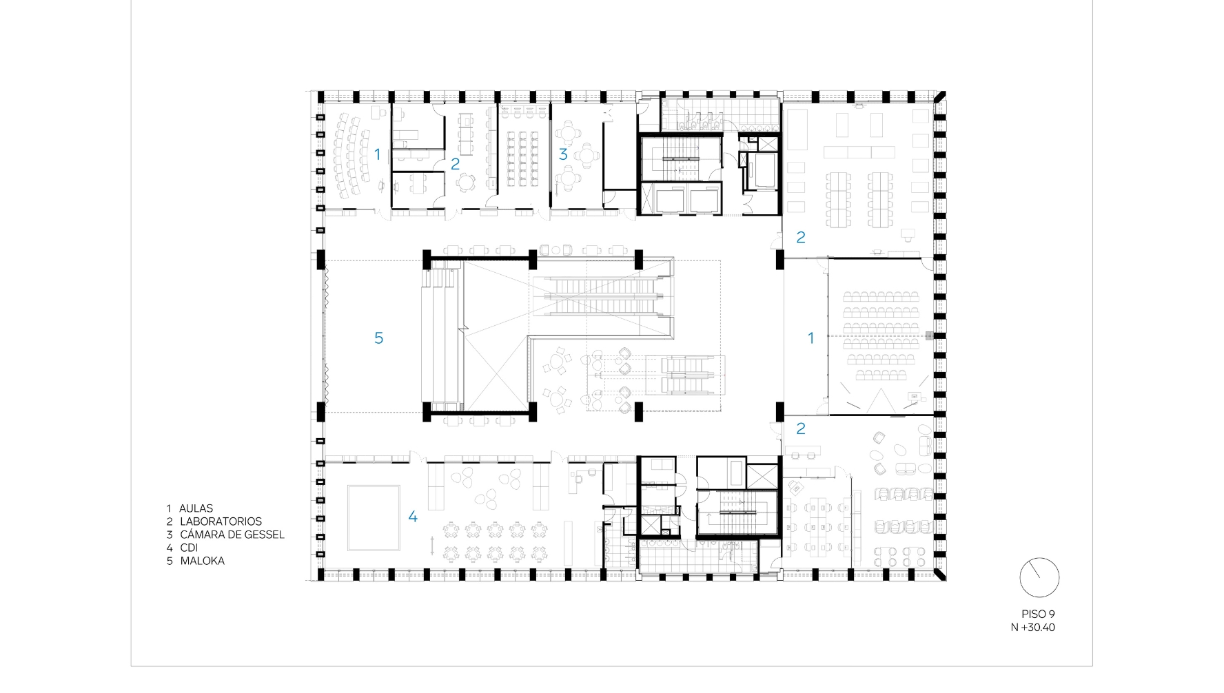
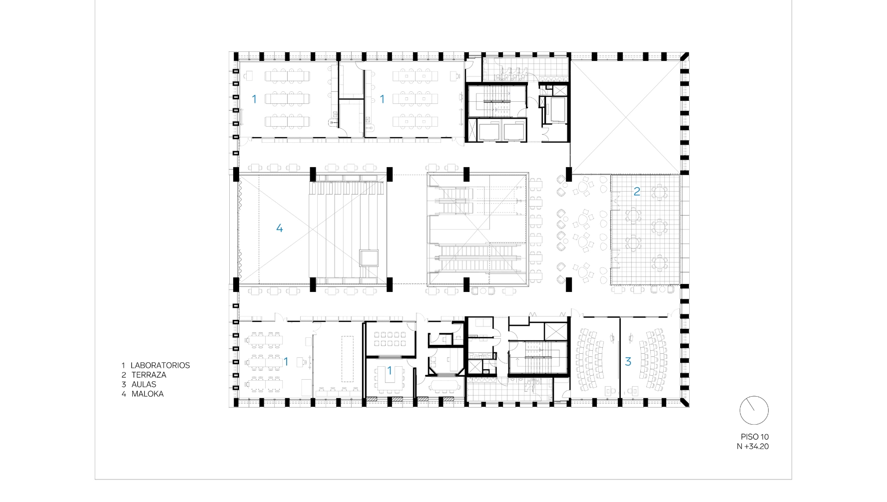
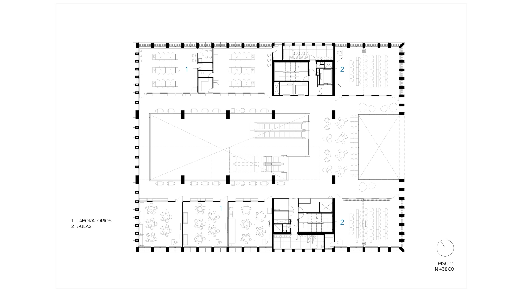
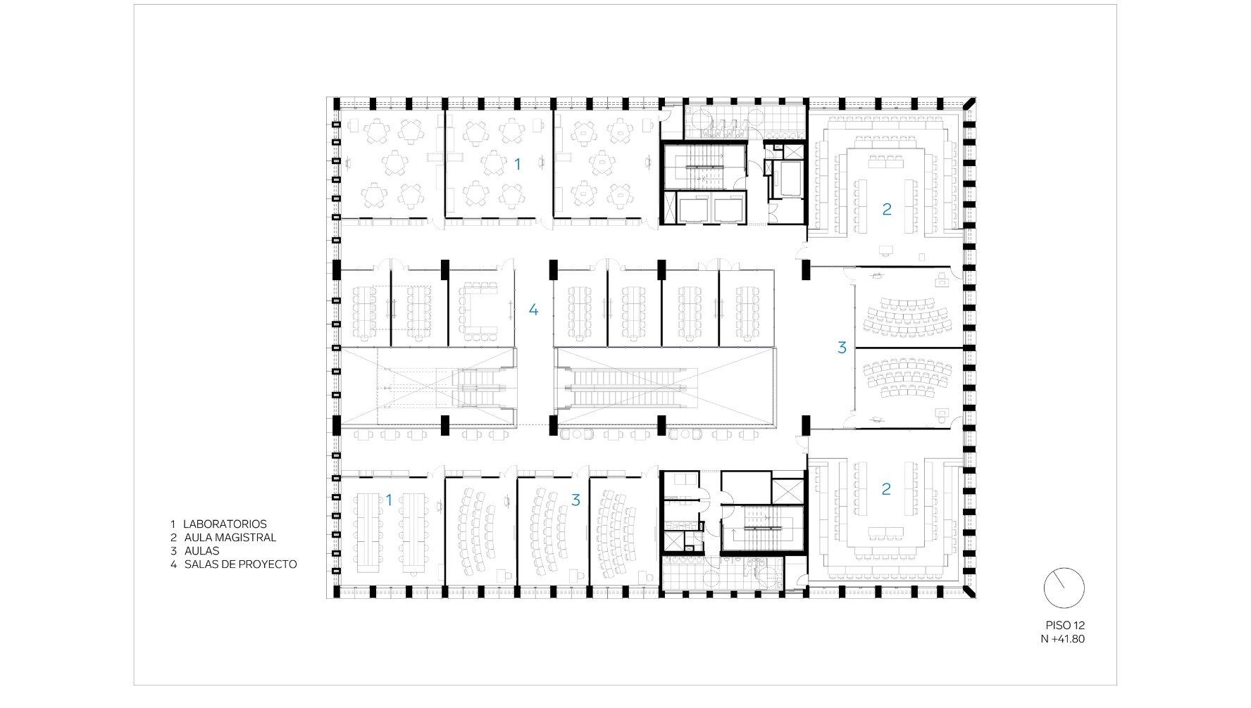
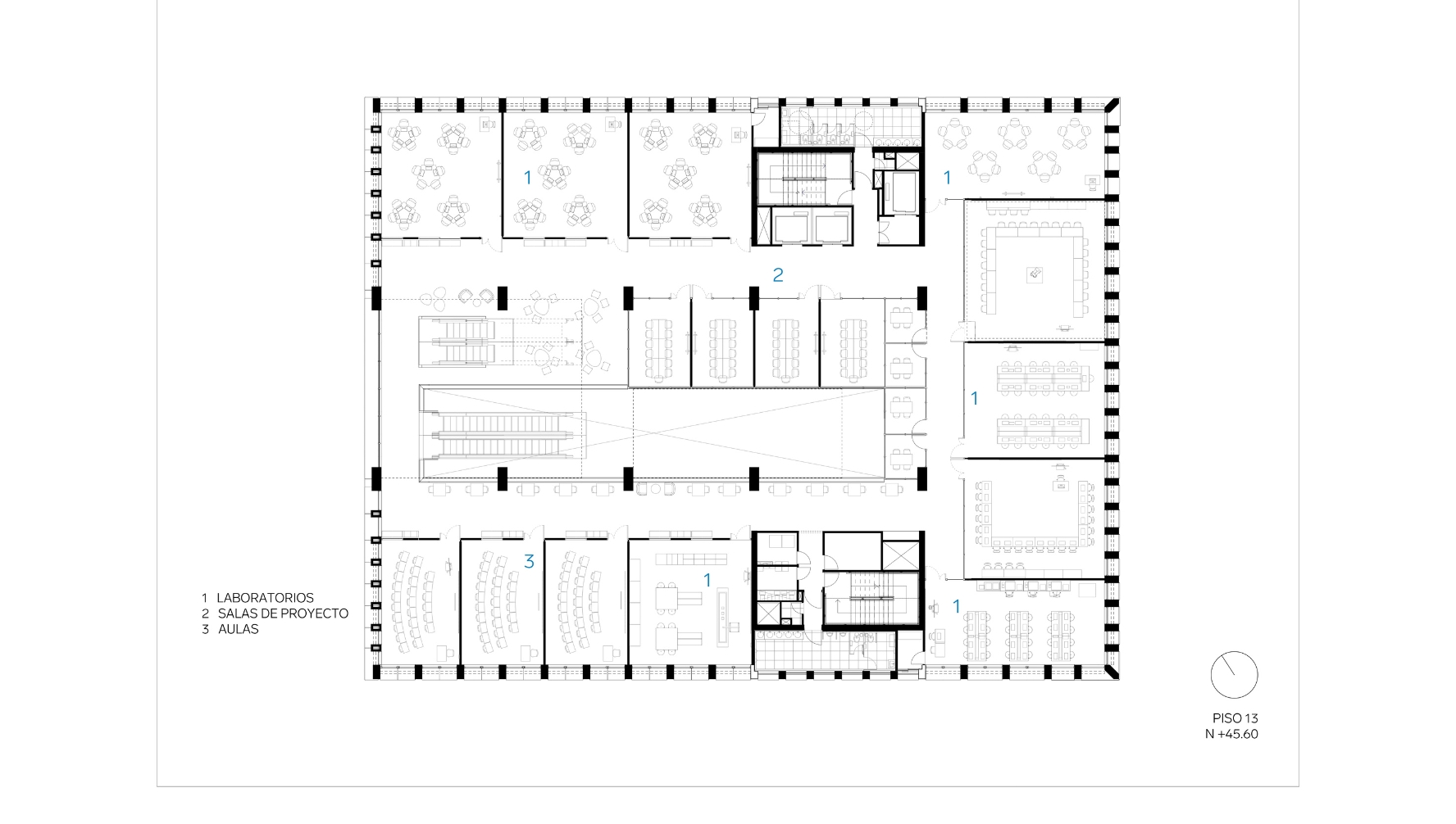
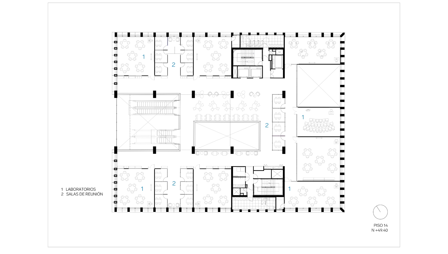
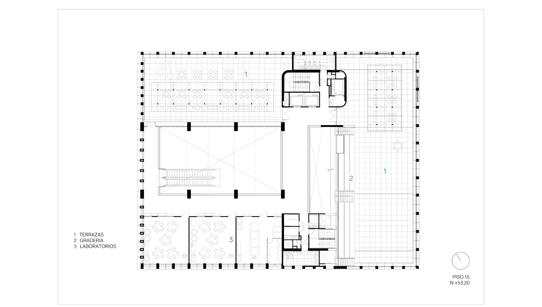
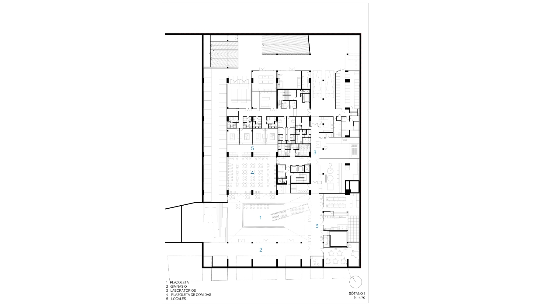
Los primeros niveles están destinados a locales comerciales y a la biblioteca, abiertos a toda la ciudadanía. Solo hasta el nivel 3 aparece el vestíbulo principal, al cual se accede por medio de escaleras mecánicas directamente desde el espacio público. En el corazón del edificio (pisos 9 y 10) se encuentra el espacio de bienestar con programas de educación no formal para todos los grupos de edad que hace la transición entre el espacio de la empresa en los pisos inferiores – que incluye espacios de alquiler de espacios y un pequeño centro de convenciones para generar interacción – y los pisos superiores que albergan los espacios académicos propiamente dichos de la universidad.
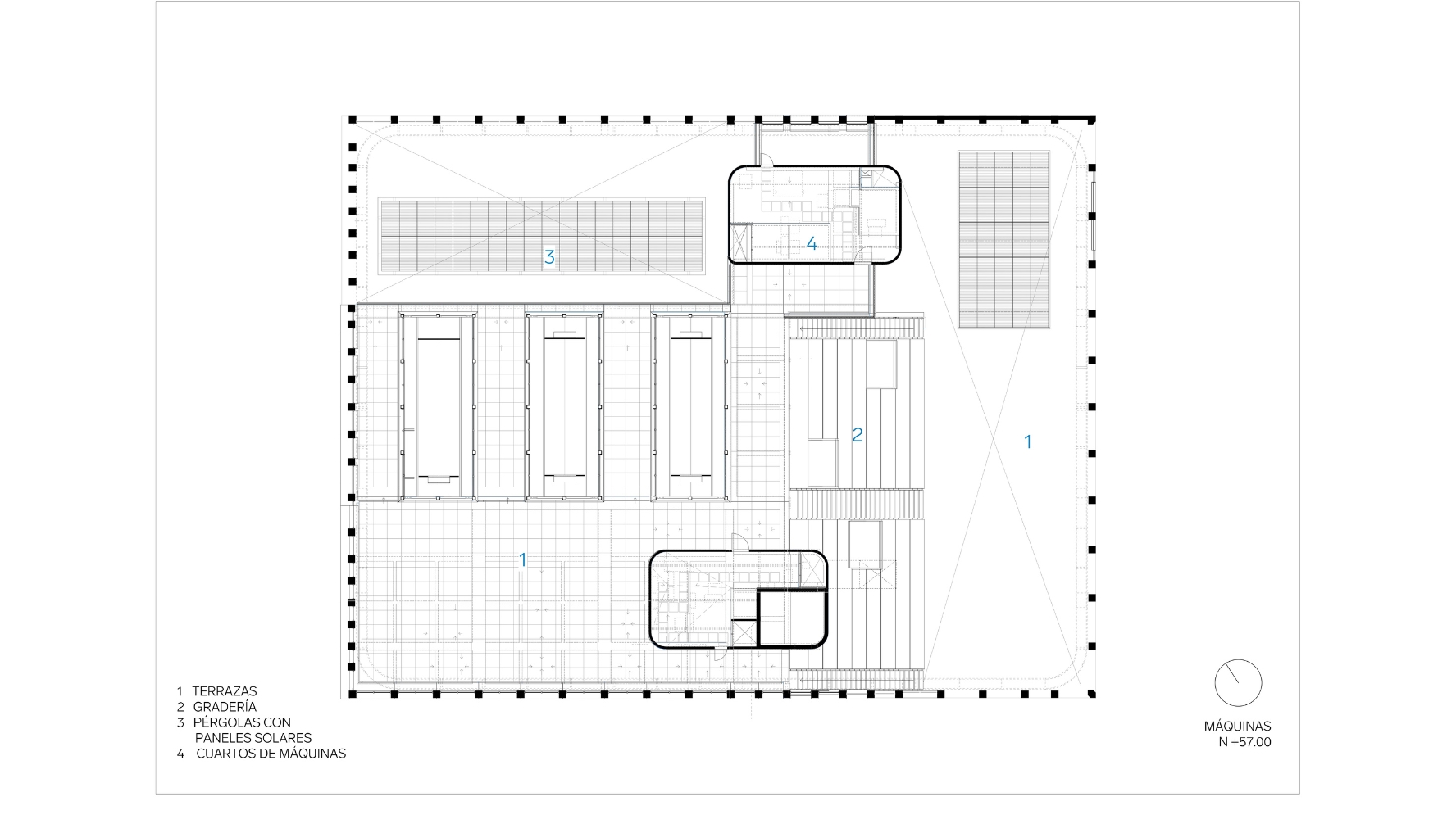
La estructura en fachada, combinada con las 4 grandes patas que contienen los espacios técnicos así como las escaleras de evacuación, permite no tener apoyos intermedios en los espacios interiores, potenciando la flexibilidad de los mismos. El recorrido vertical se hace a manera de paseo arquitectónico a través de escaleras mecánicas que se mueven por todo el edificio mezclando los diferentes programas, invitando a la interacción entre poblaciones y despertando la curiosidad de todos los visitantes.




















































